Marzysz o własnym domu w spokojnej, zielonej okolicy, z szybkim dojazdem do Rzeszowa? Ta oferta jest dla Ciebie!
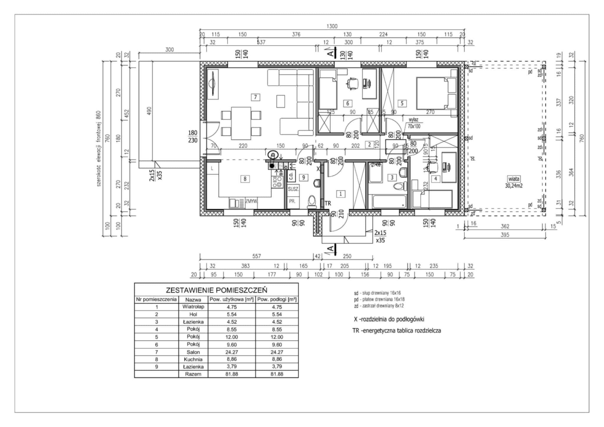
Energooszczędny dom parterowy o powierzchni użytkowej 82 m2˛ położony w centrum Bud Głogowskich, z dużą działką 845 m2˛. Lokalizacja łączy komfort życia w ciszy i kontakcie z naturą, a jednocześnie bliskość:
-Przedszkola, szkoły i kościoła ok. 1 km
-Sklep Delikatesy Centrum ok. 500 m
-Przystanek autobusowy tuż przy domu 20 min do Rzeszowa
-Stadion piłkarski i tereny zielone w pobliżu
Dom został zaprojektowany z myślą o funkcjonalności i komforcie:
-Przestronna strefa dzienna (pokój dzienny + jadalnia 24 m2˛)
-Trzy wygodne sypialnie
-Wiatę 30 m2˛, którą można zaadaptować np. na garaż, warsztat lub pomieszczenie gospodarcze
Energooszczędne rozwiązania: doskonała izolacja, ogrzewanie podłogowe, przygotowanie pod fotowoltaikę
Budowa i materiały najwyższej jakości:
-Nowoczesna konstrukcja szkieletowa z ociepleniem 25 cm
-Dach dwuspadowy z blachodachówki ESTIMA
-Stolarka okienna 3-szybowa z ciepłym montażem, drzwi Gerda
-Pełne przyłącza: gaz, woda, prąd, kanalizacja, światłowód
Dom sprzedawany w stanie deweloperskim plus, kompletny z elewacją, doprowadzonymi mediami, wylewkami betonowymi, pełną elektryką i instalacjami gotowymi do montażu: klimatyzacja, domofon, instalacja pod PV, komin pod kominek.
Doskonała propozycja dla młodych rodzin, osób szukających ciszy z jednoczesnym dostępem do miasta oraz inwestorów planujących komfortowy, energooszczędny dom.
Nie przegap okazji! Dom w tej lokalizacji i standardzie wciąż jest dostępny, zapraszam na prezentację.











Opinie
Na razie nie ma opinii o produkcie.